关于德钦县巴迪中心完小迁址重建项目《建设工程规划许可证》批前公示
我局收到德钦县教育体育局办理位于巴迪乡真朴村“德钦县巴迪中心完小迁址重建项目”《建设工程规划许可证》的办理申请和有关资料。经审查,拟对该地块核发《建设工程规划许可证》。按照《中华人民共和国行政许可法》《中华人民共和国城乡规划法》有关规定,现将拟办理的相关内容在德钦县人民政府门户网站进行公示,公示期为7个工作日(2026年1月22日至2026年2月1日)。
公示内容如下:
申请单位名称:德钦县教育体育局
申请事项:办理《建设工程规划许可证》
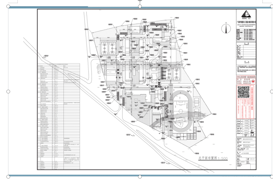
建设位置:德钦县巴迪乡真朴村
许可内容:项目总用地面积 44433.81 ㎡,约 66.65 亩,一期二期规划用地面积 25763.37 ㎡,约 38.64 亩,三期规划用地面积 18670.44 ㎡,约 28.01 亩。总建筑面积为 13637.30 ㎡,其中地上建筑面积为 13567.15 ㎡,地下建筑面积 61.05 ㎡,总占地面积为 5929.40 ㎡,其中一期建筑面积为 7545.24 ㎡,包含教学综合楼建筑面积3215.35 ㎡,男生宿舍建筑面积1385.75 ㎡,女生宿舍建筑面积为 1385.75 ㎡,学生食堂建筑面积1180.72 ㎡,公厕建筑面积 206.75 平方米,消防水泵房建筑面积170.92 ㎡;二期建筑面积1886.27 ㎡,其中值班室建筑面积29.69 ㎡,运动场看台建筑面积178.18 ㎡,教师周转房 1# 建筑面积 840.20 ㎡,教室周转房 2#建筑面积 840.20 ㎡;三期建筑面积4144.64 ㎡,其中教学综合楼2# 面积 819.78 ㎡,学生宿舍建筑面积1632.48 ㎡,食堂2# 建筑面积486.50 ㎡,公厕建筑面积95.10 ㎡,风雨活动室建筑面积1110.78 ㎡,室外泳池附属用房建筑面积244.33 ㎡。
对以上内容有意见建议的单位和个人,请于公示期内进行反馈。相关意见建议要求文字简明扼要,意见建议清晰明确,合理合法,逾期未反馈意见建议的,视为放弃上述权利。反馈方式如下:
1、来函反馈,地址:德钦县行政中心1号楼二楼自然资源局办公室,邮编:674500(来信来函请注明"德钦县巴迪中心完小迁址重建项目办理建设工程规划许可证意见建议")
2、电话反馈,电话:0887-8413121(来电请说明"德钦县巴迪中心完小迁址重建项目办理建设工程规划许可证意见建议")
3、邮箱反馈,邮箱:276793197@qq.com(邮件标题请注明"德钦县巴迪中心完小迁址重建项目办理建设工程规划许可证意见建议")。
附件:效果图、建设项目总平面图


